Retour à ma recherche

Zone Industrielle de 3 hectares à Saint Martial de Valettes

Télécharger l'annonce
Achat
A Saint Martial De Valette (24)
Terrain
A partir de 10112m²
Référence du bien : 1189

Le plus du bien

Possibilité d'une parcelle de près de 3 hectares. 

ADI établit des mises en relation vers des offreurs de solutions mais ne réalise elle-même aucune contractualisation ou transaction. 

Présentation du bien



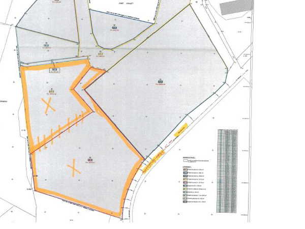
Zone Industrielle du Grand Massoneau : un espace prêt à accueillir votre activité

La Zone Industrielle du Grand Massoneau, couvrant une superficie de 64 012 m², est prête à accueillir votre entreprise. Située à Saint-Martial-de-Valette, cette zone offre un potentiel exceptionnel pour le développement de votre activité industrielle. Tous les travaux de viabilisation ont été achevés en juin 2021, assurant un accès facile et une connectivité moderne.


Disponibilité de parcelles

Plusieurs parcelles restent disponibles pour l'acquisition. Deux lots peuvent être fusionnés pour répondre à des besoins spécifiques en matière d'espace. Il s'agit du lot 5, qui s'étend sur une superficie de 19 170 m², et du lot 4, qui mesure 10 112 m². Cette flexibilité offre une grande marge de manœuvre pour l'aménagement du site en fonction de vos besoins spécifiques.


Opportunités et avantages

Implanter votre entreprise dans la Zone Industrielle du Grand Massoneau offre de nombreux avantages. Outre son emplacement stratégique, la zone a été entièrement viabilisée, offrant ainsi toutes les commodités nécessaires à une exploitation optimale. De plus, l'option de fusion des lots offre une souplesse d'aménagement qui peut être essentielle pour certaines opérations industrielles.


En somme, la Zone Industrielle du Grand Massoneau est une destination idéale pour les entreprises en recherche d'un site industriel de qualité. Elle offre des infrastructures modernes, une flexibilité d'aménagement et un potentiel de développement significatif pour votre entreprise. Opter pour une implantation à Saint-Martial-de-Valette, c'est choisir un site prêt à favoriser le succès et la croissance de votre activité industrielle.


Route départementale qui va à Nontron / Périgueux à proximité.

Commerces, artisants, écoles, créches sur Nontron

Les caractéristiques du terrain

2 lots disponibles. Les autres activités autour sont constituées d'une unité agroalimentaire et d'un bâtiment commercial.

1 m²

oui

oui

oui

oui

oui

Selon les lots

Photos

Contactez-nous

ON VOUS RAPPELLE !

Laissez-nous votre numéro.
Un conseiller vous recontacte.

POUR NOUS JOINDRE...

N’hésitez pas à nous contacter par téléphone au 05 57 57 84 84 du lundi au vendredi.

Swann
Conseiller implantation à votre écoute
guillemet_ouverture

Parlons de votre projet