Retour à ma recherche

A vendre – Terrains ZA de La Brane (64)

Télécharger l'annonce
Achat
A Ger (64)
Terrain
2100m²
Référence du bien : 870

Le plus du bien

ADI établit des mises en relation vers des offreurs de solutions mais ne réalise elle-même aucune contractualisation ou transaction.

Présentation du bien



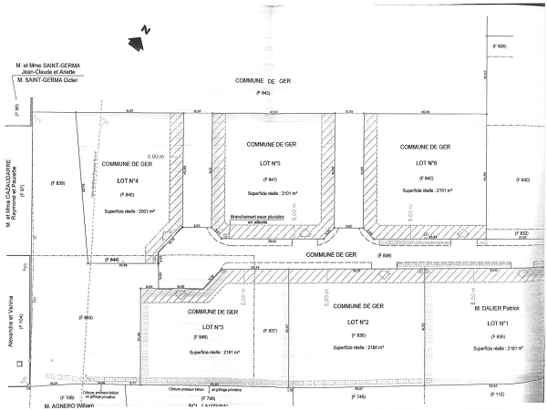
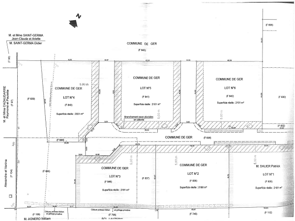
Terrains à vendre sur la zone d'activités de La Brane (64)

Découvrez une occasion unique d'investir dans un des trois terrains de 2100 m² à vendre, stratégiquement situés dans la zone d'activités de La Brane. Cette zone, au cœur du département des Pyrénées-Atlantiques (64), offre un environnement économique dynamique, propice au développement de votre entreprise.


Emplacement stratégique de la zone d'activités de La Brane

La zone d'activités de La Brane est reconnue pour son emplacement stratégique. Située au cœur de la région Nouvelle Aquitaine, elle bénéficie d'une accessibilité optimale grâce à la proximité des axes routiers majeurs. De plus, elle est entourée de divers secteurs d'activités, favorisant ainsi des synergies d'affaires productives.


Caractéristiques des terrains à vendre

Les trois terrains proposés à la vente ont une superficie de 2100 m² chacun. Ils représentent une occasion idéale pour les entreprises cherchant à s'installer dans un environnement professionnel dynamique et à développer leurs activités. Quelle que soit votre industrie, ces terrains vous offrent l'espace nécessaire pour construire des installations sur mesure et pour optimiser vos opérations.


Opportunité d'investissement dans la zone d'activités de La Brane

Investir dans un des terrains de la zone d'activités de La Brane est une opportunité à saisir pour toute entreprise cherchant à bénéficier d'un environnement économique florissant et d'une localisation stratégique. Que vous envisagiez de créer un nouvel établissement, d'agrandir votre entreprise ou d'implanter une nouvelle branche de votre activité, ces terrains peuvent répondre à vos besoins.


Contactez-nous

Ne manquez pas cette chance d'acquérir un terrain dans la zone d'activités de La Brane. Que vous soyez une startup en croissance, une PME en expansion ou une grande entreprise cherchant à diversifier vos sites d'activités, ces terrains de 2100 m² chacun offrent d'innombrables possibilités. Profitez de cette opportunité unique pour dynamiser vos activités et donner une nouvelle dimension à votre entreprise.


La zoné d'activité est située à mi-chemin entre Tarbes, Lourdes et Pau. Elle est proche des principaux axes routiers importants : route départementale 817.

Les caractéristiques du terrain

Partiellement

Pas de tout-à-l’égout dans cette zone

Photos

Contactez-nous

ON VOUS RAPPELLE !

Laissez-nous votre numéro.
Un conseiller vous recontacte.

POUR NOUS JOINDRE...

N’hésitez pas à nous contacter par téléphone au 05 57 57 84 84 du lundi au vendredi.

Swann
Conseiller implantation à votre écoute
guillemet_ouverture

Parlons de votre projet